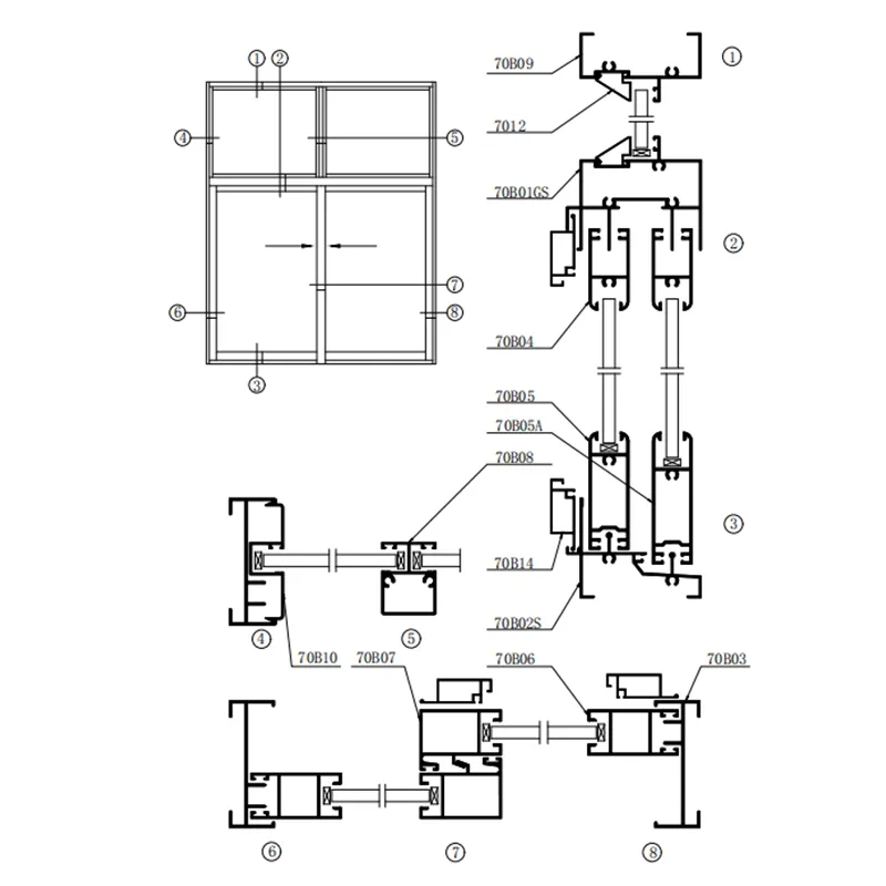
1500mm × 1500mm Standard Window
Material Thickness 1.0mm
A=1500mm B=1500mm C=500mm D=1000mm
| Name | Model | Formula | Length (mm) |
Weight (kg/m) |
Quantity | Sum (kg) |
|---|---|---|---|---|---|---|
| Side Seal | 70B03 | A | 1500 | 0.506 | 2 | 1.518 |
| Fixed Sash Upper Rail | 70B09 | B-20 | 1480 | 0.509 | 1 | 0.753 |
| Fixed Upper Sliding Rail | 70B01G | B-20 | 1480 | 0.939 | 1 | 1.389 |
| Lower Sliding Rail | 70B02 | B-20 | 1480 | 0.625 | 1 | 0.925 |
| Clamping Plate | 70B10 | C-24.9 | 475.1 | 0.370 | 2 | 0.740 |
| Inside Sash Stile | 70B06 | D-66 | 934 | 0.485 | 1 | 0.453 |
| Outside Sash Stile | 70B06 | D-54 | 946 | 0.485 | 1 | 0.459 |
| Inside Sash Stile | 70B07 | D-66 | 934 | 0.524 | 1 | 0.489 |
| Outside Sash Stile | 70B07 | D-54 | 946 | 0.524 | 1 | 0.496 |
| Upper Frame Rail | 70B04 | B/2-58.5 | 691.5 | 0.443 | 2 | 0.612 |
| Little Lower Frame Rail | 70B05 | B/2-58.5 | 691.5 | 0.689 | 1 | 0.476 |
| Big Lower Frame Rail | 70B05A | B/2-58.5 | 691.5 | 0.741 | 1 | 0.512 |
| H-Bead | 7012 | B-60.5 | 1439.5 | 0.077 | 2 | 0.222 |
| Total Weight | 1.5m × 1.5m =2.25m² | 9.044 | ||||
| Average Weight | (kg/m²) | 9.044/2.25=4.02 | ||||

测试22222222222222