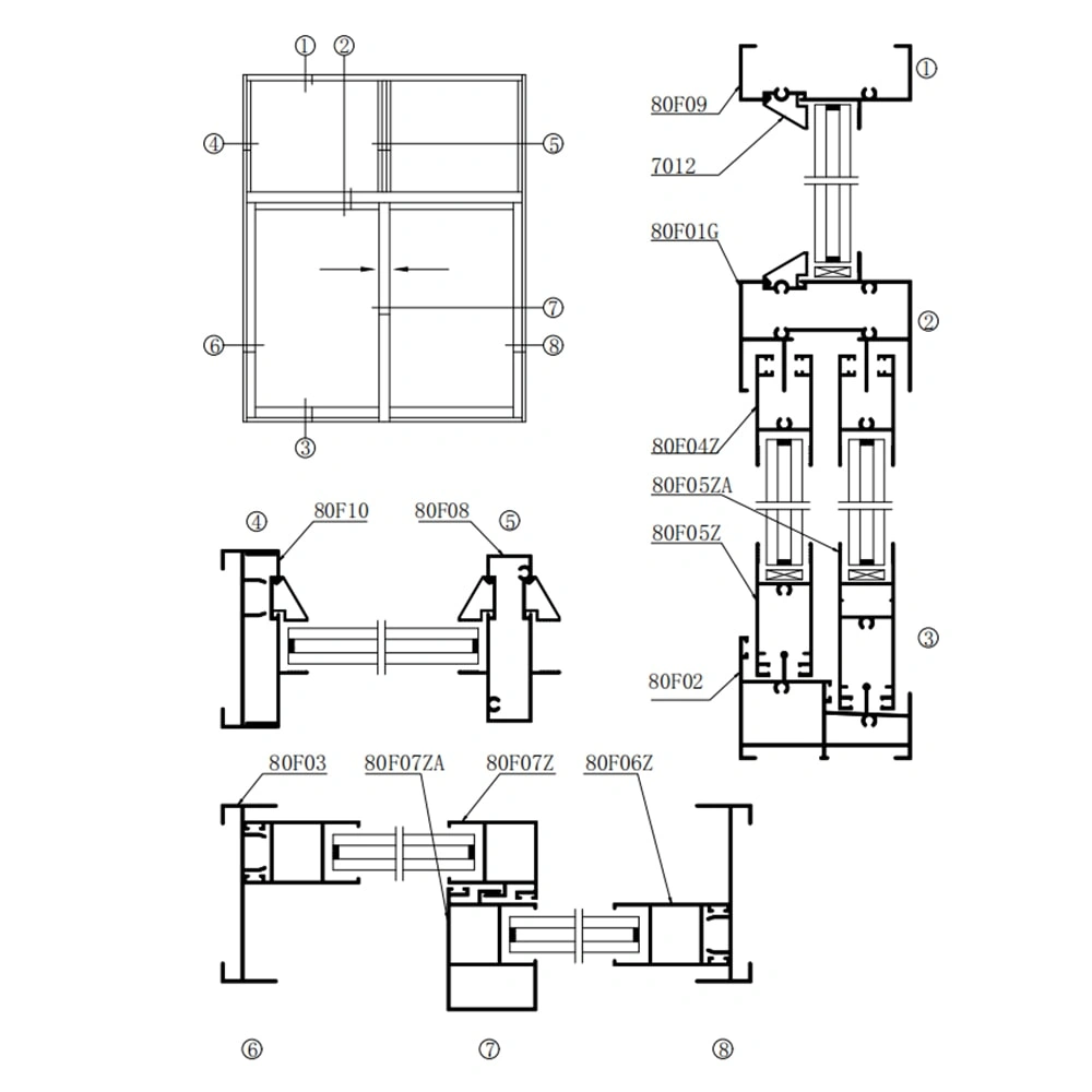
1500mm × 1500mm Standard Window
Material Thickness 0.8mm
A=1500mm B=1500mm C=500mm D=1000mm
| Name | Model | Formula | Length (mm) |
Weight (kg/m) |
Quantity | Sum (kg) |
|---|---|---|---|---|---|---|
| Side Seal | 80F03 | A | 1500 | 0.494 | 2 | 1.482 |
| Fixed Sash Upper Rail | 80F09 | B-20 | 1480 | 0.525 | 1 | 0.777 |
| Fixed Upper Sliding Rail | 80F01G | B-20 | 1480 | 1.129 | 1 | 1.671 |
| Lower Sliding Rail | 80F02 | B-20 | 1480 | 1.075 | 1 | 1.591 |
| Clamping Plate | 80F10 | C-25 | 475 | 0.361 | 2 | 0.343 |
| Inside Sash Stile | 80F06Z | D-77.4 | 924.6 | 0.482 | 1 | 0.446 |
| Outside Sash Stile | 80F06Z | D-63 | 937 | 0.482 | 1 | 0.452 |
| Inside Sash Stile | 80F07Z | D-77.4 | 924.6 | 0.481 | 1 | 0.445 |
| Outside Sash Stile | 80F07ZA | D-63 | 937 | 0.694 | 1 | 0.650 |
| Upper Frame Rail | 80F04Z | B/2-50 | 700 | 0.442 | 2 | 0.619 |
| Lower Frame Rail | 80F05Z | B/2-50 | 700 | 0.482 | 1 | 0.337 |
| Big Lower Frame Rail | 80E05 | B/2-50 | 700 | 0.618 | 1 | 0.433 |
| Total Weight | 1.5m × 1.5m =2.25m² | 9.246 | ||||
| Average Weight | (kg/m²) | 9.246/2.25=4.109 | ||||

测试22222222222222