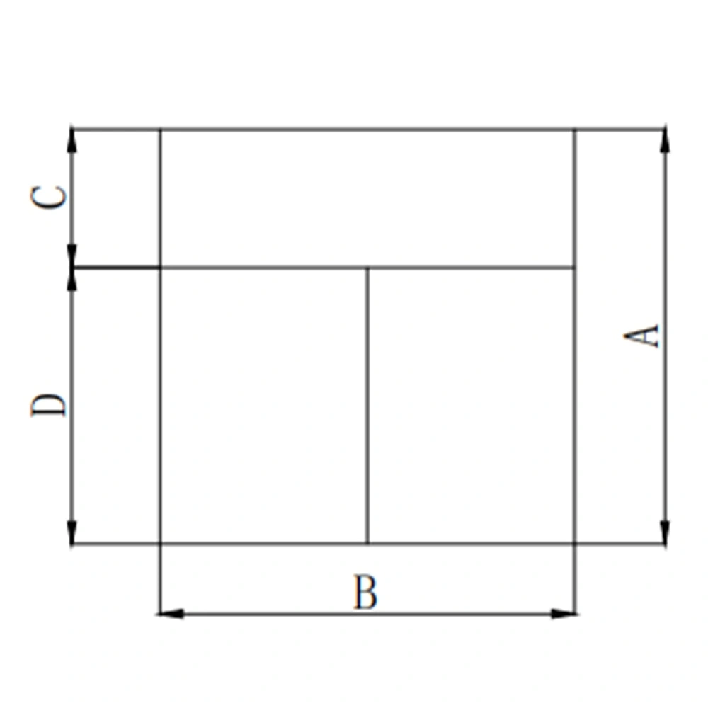
1500mm × 1500mm Standard Window
Material Thickness 1.2mm
A=1500mm B=1500mm C=500mm D=1000mm
| Name | Model | Formula | Length (mm) |
Weight (kg/m) |
Quantity | Sum (kg) |
|---|---|---|---|---|---|---|
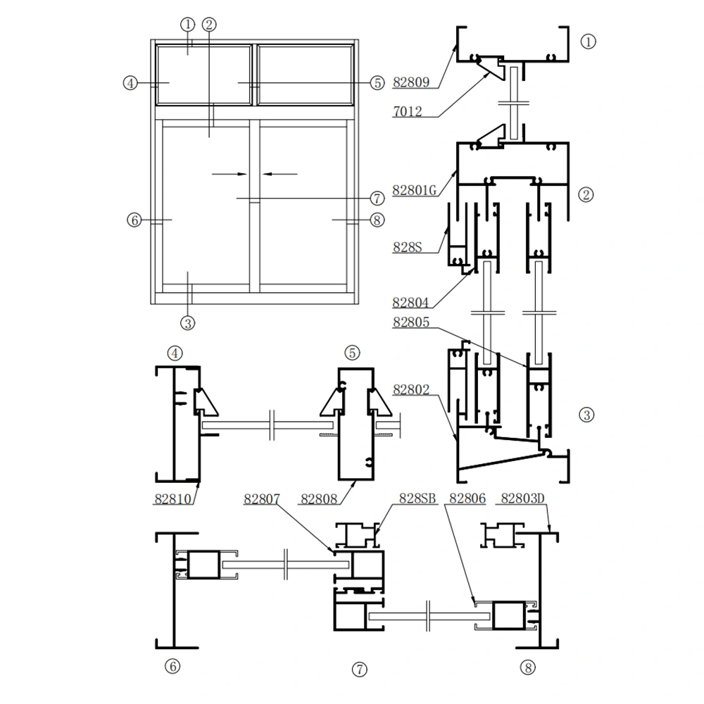
| Side Seal | 82803D | A | 1500 | 0.539 | 2 | 1.617 |
| Fixed Sash Upper Rail | 82809 | B-27 | 1473 | 0.563 | 1 | 0.829 |
| Fixed Upper Sliding Rail | 82801G | B-27 | 1473 | 1.230 | 1 | 1.882 |
| Lower Sliding Rail | 82802 | B-27 | 1473 | 0.973 | 1 | 1.433 |
| Clamping Plate | 82810 | C-25 | 475 | 0.398 | 2 | 0.378 |
| Inside Sash Stile | 82806 | D-82.2 | 917.8 | 0.434 | 1 | 0.398 |
| Outside Sash Stile | 82806 | D-72.2 | 927.8 | 0.434 | 1 | 0.403 |
| Inside Sash Stile | 82807 | D-82.2 | 917.8 | 0.487 | 1 | 0.447 |
| Outside Sash Stile | 82807 | D-72.2 | 927.8 | 0.487 | 1 | 0.452 |
| Upper Frame Rail | 82804 | B/2-49.1 | 700.9 | 0.437 | 3 | 0.989 |
| Lower Frame Rail | 82805 | B/2-49.1 | 700.9 | 0.641 | 1 | 0.449 |
| H-Bead | 7012 | B-56 | 1444 | 0.077 | 2 | 0.222 |
| V-Bead | 7012 | C-18.6 | 481.4 | 0.077 | 2 | 0.074 |
| Total Weight | 1.5m × 1.5m =2.25m² | 9.583 | ||||
| Average Weight | (kg/m²) | 9.583/2.25=4.26 | ||||

测试22222222222222